Корзина
Ваша корзина пуста!
Это никогда не поздно исправить :)
Шкивы для клиновых ремней в основном применяются в силовых передачах не требующих точного позиционирования. Шкивы для клиновых приводов при резком увеличении нагрузки обеспечивают проскальзывание ремня, что не приводит к его обрыву и позволяет обойтись без муфты сцепления.
Шкив SPB/6 предназначен для использования одного ремня профиля B (SPB, XPB, BX).
Шкивы для клиновых ремней классического профиля поставляются в стандартном исполнении с посадкой на конусную втулку, реже встречаются шкивы с посадочным отверстием под расточку. Такие шкивы можно применять если у вас не стандартный или большой диаметр посадки.
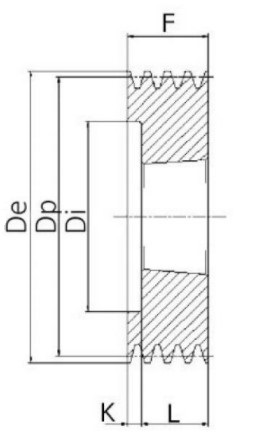
Габаритные размеры SPB 140/6 TB 2517

| Модель | Размеры, мм | |||||
| Di | Dp | F | K | L | De | |
| SPB 140/6 TB 2517 | 100 | 140 | 120 | 37.5 | 45 | 147 |