Пн-Пт 9:00-18:00;
Сб-Вс выходной


Тепловая завеса Тепломаш КЭВ 6П2212Е

New
Тепловая завеса Тепломаш КЭВ 6П2212Е
Модель: 1115346
Оплата
Безналичный платеж с НДС
Безналичный платеж с НДС
Оплата при получении
Оплата при получении
LiqPay
LiqPay
Доставка
Новая почта
Самовывоз
In Stock
16469.00грн.

Описание Тепловая завеса Тепломаш КЭВ 6П2212Е


Применение воздушно-тепловой завесы Тепломаш КЭВ 6П2212Е

Устройство Тепломаш КЭВ 6П2212Е – тепловая завеса универсального способа установки, рассчитанная на выработку потока, достаточного для защиты проема, высота которого составляет от 2,0 до 2,5 м. Используется в жилых квартирах и домах, торговых площадях, офисах и прочих помещениях.

Вертикальный монтаж делает возможным одновременное использование 2 агрегатов Тепломаш КЭВ 6П2212Е с перекрестными потоками. Таким образом усиливается защита проема.

Оболочка, используемая в продукте, обеспечивает класс защиты IP21.

Преимущества воздушно-тепловой завесы Тепломаш КЭВ 6П2212Е
  • Регулируемые ТЭНы с оребрением.
  • Корпус выполнен из оцинкованной стали со специальным напылением.
  • Устройство не нагревается в процессе эксплуатации.
  • Защита от перегрева.
  • Устойчивость к коррозийным процессам.
  • Универсальный монтаж.
  • Долгосрочная эксплуатация.
  • Малогабаритность.
  • Привлекательный внешний вид.
  • Дистанционное управление при помощи пульта.

Маркировка воздушно-тепловой завесы Тепломаш КЭВ 6П2212Е

КЭВ - 6 П 2 2 11 Е
1 2 3 4 5 6 7

1. Аббревиатура, означающая,
что завеса выпущена фирмой «Тепломаш»;
2. Установленная электрическая (тепловая)
мощность нагревательных элементов, кВт
3. Функциональное назначение
П – воздушно-тепловая завеса
4. Номер серии
5. Напряжение питания - 220В/380В
6. Номер модели
7. Электрические нагревательные элементы

Управления воздушно-тепловой завесы Тепломаш КЭВ 6П2212Е

Устройством управления завесой Тепломаш КЭВ 6П2212Е является дистанционный пульт (поставляется в комплекте с основным изделием). С помощью пульта поддерживается температурный режим воздуха в непосредственной близости от дверей и регулируется тепловая мощность.


Условия для качественной работы воздушно-тепловой завесы Тепломаш КЭВ 6П2212Е
  • Поддерживаемый температурный режим - -20...+40°C
  • При температуре в 20°C процент влаги в воздухе должен быть менее 80%.
  • Максимально допустимая запыленность воздуха - 10 мг/м3.
  • Категорически противопоказано присутствие в воздухе: капельной влаги; химически агрессивных к углеродистым сталям кислот и щелочей; липких, смолянистых и горючих элементов; различных видов волокон.

 

Характеристики
Бренд Тепломаш
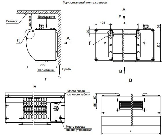
Габаритные размеры (ВхШхГ).0 1035 mm
Габаритные размеры (ВхШхГ).1 215 mm
Габаритные размеры (ВхШхГ).2 220 mm
Длина 1.035 m
Источник тепла Электрический
Количество завес, подключаемых к одному пульту управления 618 m
Макс. скорость воздуха на выходе 7 ms
Масса 11.6 kg
Назначение Офисная средней мощности
Напряжение 380 B
Подогрев воздуха 16 - 22 C
Потребляемая мощность 0.1 Вт
Режимы мощности 6.3 KW
Страна-производитель Россия
Тип настенная
Ток 29.2 A
Уровень звукового давления 31 m
Эффективная длина струи 2.5 m

Отзывы о Тепловая завеса Тепломаш КЭВ 6П2212Е

0
0
0
0%
0
0%
0
0%
0
0%
0
0%
Нет отзывов о данном товаре.

Вопросы и ответы (FAQ) Тепловая завеса Тепломаш КЭВ 6П2212Е

Нет вопросов об этом товаре.

Габаритные размеры тепловой завесы Тепломаш КЭВ 6П2212Е

Габаритные размеры тепловой завесы Тепломаш КЭВ 6П2212Е

Габаритные размеры тепловой завесы Тепломаш КЭВ 6П2212Е

Недавно просмотренные
New
Тепловая завеса Тепломаш КЭВ 110П6131W
In Stock
Модель: 1115828
88580.00грн.
New
Тепловая завеса Тепломаш КЭВ-200П5120W
In Stock
Модель: 1010270
96019.00грн.
New
Тепловая завеса Тепломаш КЭВ-44П6160W
In Stock
Модель: 1010315
42570.00грн.
New
Тепловая завеса Тепломаш КЭВ-28П3150W
In Stock
Модель: 1016334
31261.00грн.
New
Тепловая завеса Тепломаш КЭВ 24П5051Е
In Stock
Модель: 1115362
0.00грн.
New
Тепловая завеса Тепломаш КЭВ-125П5150W
In Stock
Модель: 1010271
0.00грн.
New
Тепловая завеса Ballu BHC-3.000SB
In Stock
Модель: 1010819
0.00грн.
New
Тепловая завеса Ballu BHC-18.000TR
In Stock
Модель: 1010828
0.00грн.
icon_viber Viber icon_teleg Telegram icon_whatsapp WatsApp icon_callback Заказать звонок icon_email Написать на почту