Корзина
Ваша корзина пуста!
Это никогда не поздно исправить :)
Срок поставки 1-7 дней.
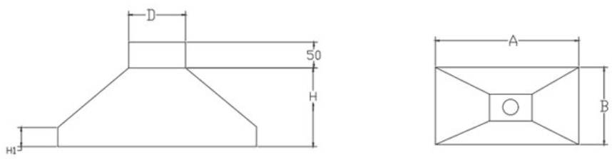
Зонт вытяжной островной используется для очистки воздуха в помещениях, устанавливается над всевозможными жарочными поверхностями, кухонными плитами, фритюрницами, грилями, мангалами, тандырами (твердотопливными котлами) поглощая излишки испарений, неприятные запахи, продукты горения, жиры.
Можем изготовить зонт из оцинкованной стали толщиной 0.7 или 1.0 мм.
Также можем изготовить зонт из нержавеющей стали.
Габаритные размеры Зонт вытяжной островной 1000x600x400 № 4.1

Модель |
Размеры, мм | |||||
| A | B | H1 | H2 | D | Толщина | |
| Зонт вытяжной островной 1000x600x400 № 4.1 | 1000 | 600 | 400 | 100 | 200 | 0.5 |